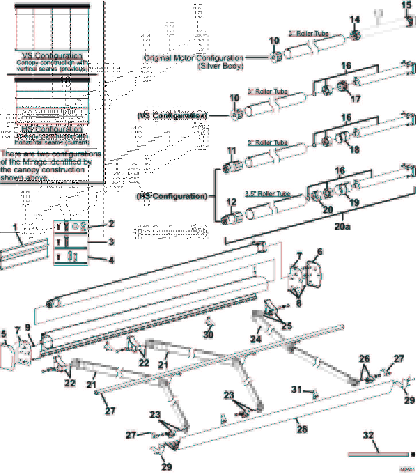
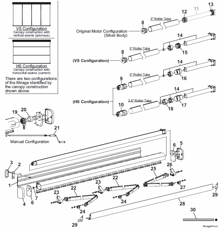
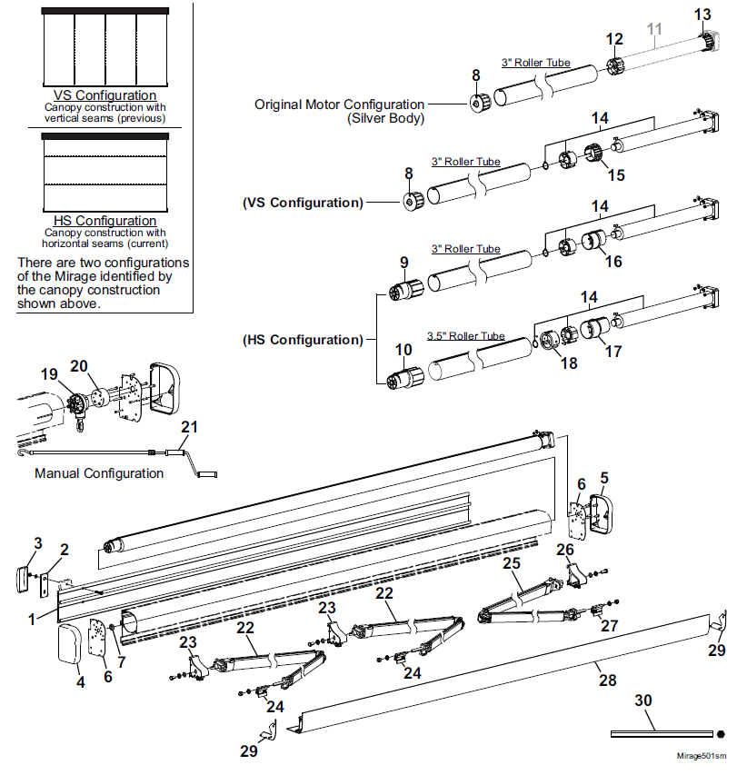
Mirage Replacement Parts
Mirage
| Item # | Part Number | Description | Additional Information | Notes |
|---|---|---|---|---|
| 1 | R001077SAT-xxx | Mounting Plate | ||
| 2 | R036333-001 | Backing Plate | ||
| 3 | R040548-001 | Cover, Backing Plate | ||
| 4 | R001051XXX | End Cap, Standard, LH | ||
| 5 | R001056XXX | End Cap, Standard, RH | ||
| 6 | R001052 | Endplate, Housing | ||
| 7 | R035310-002 | Bushing, Used on Idler endplate. | ||
| 8 | R001054 | End Plug, Idler – No Longer Available | Used with VS Configuration – 3″ Roller Tube | 7 |
| 9 | R041335-001 | End Plug, Idler – No Longer Available | Used with HS Configuration – 3″ Roller Tube | |
| 10 | R041581-001 | Used with HS Configuration – 3.5″ Roller Tube | ||
| 11 | NLA | Motor Assy, Silver Body – No Longer Available | FSO: R001853 | |
| 12 | R030886-001 | Drive Gear, Motor – No Longer Available | ||
| 13 | R030885-001 | Crown, Motor | Used with item 6 | |
| 14 | R001853 | Motor Assy, Orange Body | ||
| 15 | R041369-001 | Crown, Motor | Used with VS Configuration = 3″ Roller Tube | 7 |
| 16 | R041336-001 | Crown, Motor | Used with HS Configuration – 3″ Roller Tube | 7 |
| 17 | R041580-001 | Crown, Motor | Used with HS Configuration – 3.5″ Roller Tube | 7 |
| 18 | R001992-001 | Drive Adaptor | Used with HS Configuration – 3.5″ Roller Tube | 7 |
| 19 | R062779-001 | Gear Assy, Hand Crank – No Longer Available | ||
| 20 | R040551-001 | Spacer – No Longer Available | Used w/ Hand Crank | |
| 21 | R001546-RP | Crank Handle Assy | ||
| 22 | R001616XXX R012531-XXL096 |
Spring Arm Assy, LH & Center Spring Arm Assy, LH & Center |
10′ Extension 8′ Extension |
2,4 2,4 |
| 23 | R019260-101 | Case Connector, LH and Center – Mill | 2,4 | |
| 24 | R019261-23L | Leadrail Connector, LH | 2,4 | |
| 25 | R001617XXX R012531-XXR096 |
Spring Arm Assy, RH Spring Arm Assy, RH |
10′ Extension 8′ Extension |
3 3 |
| 26 | R019260-001 | Case Connector, RH – Mill | 3 | |
| 27 | R019261-23R | Leadrail Connector, RH | 3 | |
| 28 | R001173-XXX-xxx | Leadrail | ||
| 29 | R001053XXX | Endplate, Leadrail | ||
| 30 | R030796-001 | Hex Key, Manual Override, 7mm | ||
| The following parts are not displayed in the diagram above. | ||||
| R012459-001 | Hardware Pack, OEM | |||
Notes: 1: XXX = Color; xxx = Length in inches.
2: Item 22 (LH Spring Arm Assy) contains items 23 and 24 (LH Knuckle and Leadrail Connector).
3: Item 25 (RH Spring Arm Assy) contains items 26 and 27 (RH Knuckle and Leadrail Connector).
4: For awnings 19′ and longer with 3 arms, use LH arm (item 22) for middle arm.
5: End Plugs (items 8, 9, 10) and crowns (items 15, 16, 17) are configuration specific and are not interchangeable.
6: Motor assembly (item 14) includes drive and attaching hardware. It does not include crown.
7: Starting in March, 2019 Carefree uses a 3.5″ aluminum roller tube. Prior units used a 3″ steel roller tube. Confirm the awning configuration and roller tube diameter before ordering parts.

